Steering

| General Details | Circuit Layout | Description | Operation |


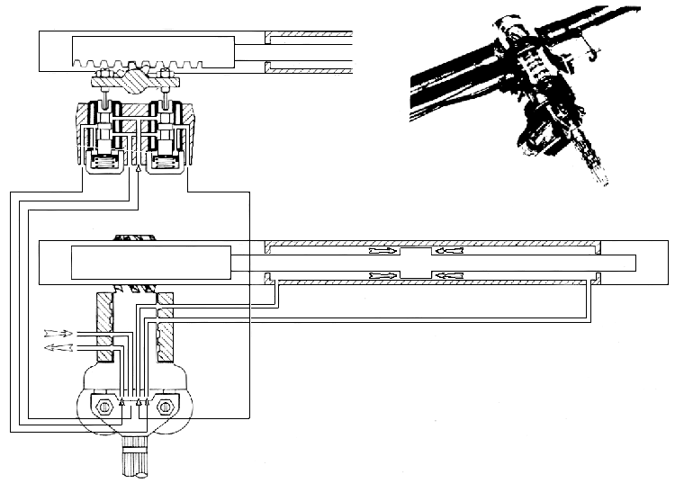
I - GENERAL DETAILS

  • This is a rack and pinion type operated hydraulically.
  • The hydraulic operation allows the use of a very high-geared steering without requiring a great effort on the part of the driver.

II - CIRCUIT LAYOUT


III - DESCRIPTION

Two main-units comprise the hydraulic part of the steering. These are the piston / cylinder, and the Control Valves with rotating union.

 

1) Piston / cylinder unit :
  • This is a double-acting piston connected to the rack.
2) Valves with Rotating Union :
  • Two pressure-control slide-values (one for each side of the piston) are connected to the steering by way of a coupling fork.
  • As the slide-valves move with the steering wheel, the hydraulic connections between the fixed (supply of pressure and return) and moving (valve black) parts are maintained by the rotating union.

IV - OPERATION

1) No movement of the steering wheel :

The fork is at rest and the pressure-control slide-valves are also in equilibrium, closing the inlet ports in the valve block.

2) Movement of the Steering Wheel :

When the wheel is turned, this leads to a movement of the slide-valves in relation to their sleeves in the valve block. One slide-valve moves down, the other rises.

The valve which moves down connects high-pressure to one side of the piston.

The second slide-valve which rises, allows the fluid on the other side of the piston to return to the reservoir.

3) Stopping of the Steering Wheel :

When the rack moves it turns the pinion, which moves the sleeves, in which the control slide-valves are situated, in the direction which would tend to make the valves return to the cut off position.

As long as the driver turns the steering wheel he holds the slide-valves in the open position, but when he ceases to turn, the sleeves return to their cut off position in relation to the slide-valves and the rack stops moving.

4) Residual Pressure :

A residual pressure is maintained on either side of the piston when the steering is at rest. This pressure is maintained by the pressure-distributor valve assembly and its value is a function of the position of the pressure-control slide-valves in their sleeves. (The Crossover pressures).

  • Because of this, any movement of the steering wheel causes an immediate response of the rack, by virtue of rising pressure on one side of the piston and falling pressure on the other side. The movement of the rack is thus immediate.

NOTE : A dash-pot is situated under each slide-valve.

5) Mechanical Linkage :
  • Steering without Pressure : To provide a mechanical linkage, the fork has two pegs which operate the pinion direct. These pegs have some play in their housing ; this play allows :
    • under pressure, the movement of the pinion before the slide-valve.
    • without pressure, movement of the pinion before the slide-valves reach the end of their travel in the sleeves.
  • Steering Under Pressure : The play is not felt : the residual pressure which acts equally on both slide-valves keeps them in contact with the fork.

Back to top of page